

Immeuble 310.14 m² 2 etage(s)
Coulommiers (77120)A propos de ce bien
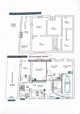
Venez découvrir cet immeuble élevé sur sous-sol total, à usage professionnel comprenant au RDC : entrée avec espace accueil avec élévateur PMR, 3 bureaux, WC, garage intégré.
A l'étage : dégagement desservant, 5 bureaux, 2 WC, terrasse.
Au dessus : dégagement desservant, 4 bureaux, salle de réunion, cuisine, 2 WC.
Au sous-sol : 4 pièces, cave, chaufferie.
De plus : parking 9 VL, jardin clos.
Le tout édifié sur une parcelle de terrain de 500 m² environ.
Caractéristiques de ce bien
- Surface 310,14 m²
- carrez 310,14 m²
- construit en 1800
- Chauffage individuel : radiateur (gaz de ville)
- 1 garage(s)
- 9 parking(s)
- exposition Est-Ouest
- 3 niveau(x)
- 2 étage(s)
- cave
- terrasse
- interphone
- quartier Coulommiers
- accès handicapé